Gewerbefläche in Jülich Zentrumsnahh
ohne Parkplatzprobleme zu vermieten
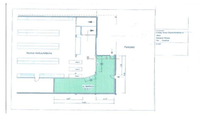
VERKAUFSFLÄCHE: MIETPREIS:
ca. 85 m² nach Größe & Ausstattung
KUNDENPARKPLÄTZE: BESONDERES:
direkt vor dem Objekt autarke Gewerbefläche mit
LAGE: eigenem Eingang
an gut frequentierte Aachener Strasse BEZUGSTERMIN:
nach Vereinbarung
BESCHREIBUNG:
An der gut frequentierten Aachener Strasse erweitert der NORMA Lebensmittel-
Discountmarkt seine Größe. Hier haben Sie die Möglichkeit sich zu etablieren.
In direkter Nachbarschaft befinden sich der Getränkemarkt „Trinkgut“, KIK und die
Stadtverwaltung. Ganz Neu !!! Direkt neben dem Norma-Markt befindet sich
die Akademie zur Ausbildung. Das EKZ wird von ca. 850-1000 Kunden
pro Tag frequentiert.








